Stone House with Courtyard and Terrace €108,000 ref: SLR03092
Large stone outbuilding in the heart of the village, with a floor area of 210 m2, offering great potential for renovation to become a charming family home. It already has an existing terrace and a small courtyard, perfect for enjoying the outdoors. Part of the roof has been redone, the other part needs work, an asset for completely personalising this place to your taste.
Let your imagination run wild: this building could become a superb character property.
Planning permission has already been granted.
- Location: Village with all amenities, restaurants, grocery store, pizzeria, bakery, 20 minutes from Beziers, 25 minutes from the beaches and 10 minutes from the Orb river.
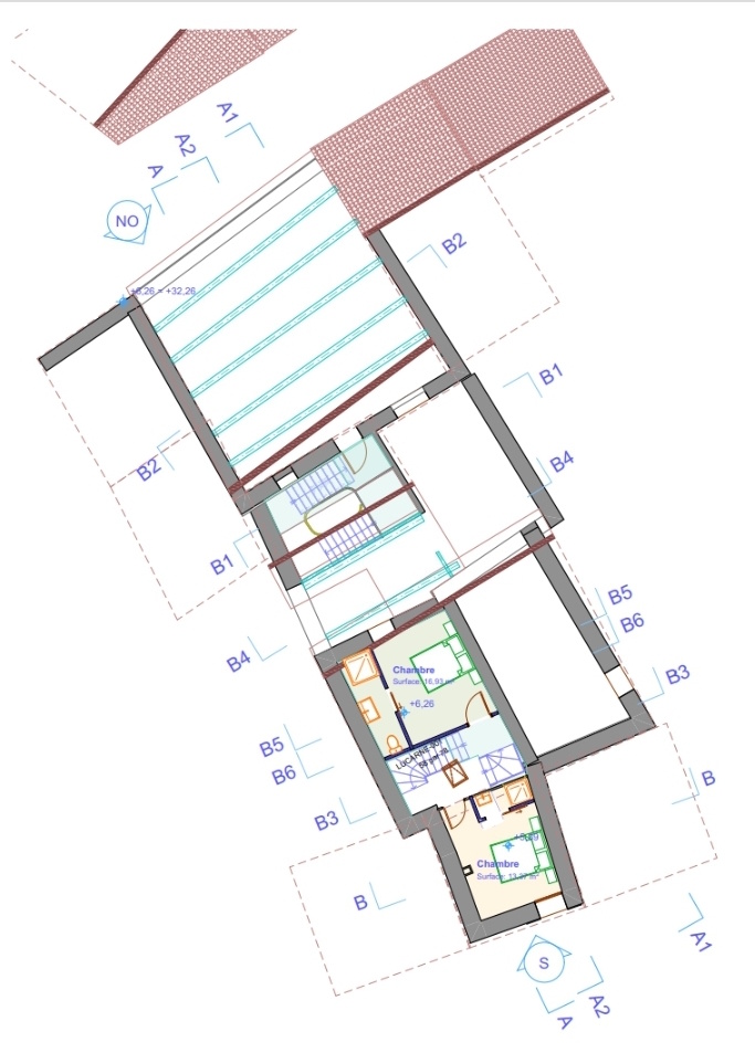
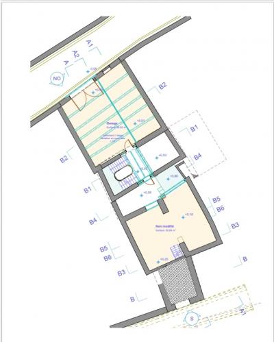
- Ground floor: Entrance hall of 60 m2 (garage), courtyard of 17 m2, room of 45 m2 with access to the second part of the shed (approximately 50 m2).
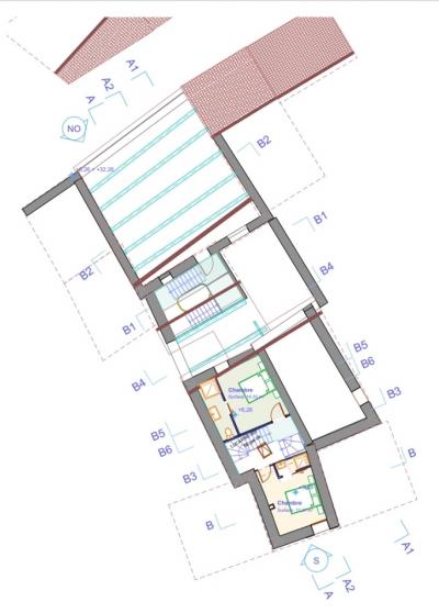
- 1st floor: Provision for access, terrace of approximately 13 m2, 150 m2 possible.
- Miscellaneous: Good location, part of the roof has been redone, provision for connection to utilities, a permit has already been granted for 2025, not subject to energy performance diagnostics.
Great potential.
The prices are inclusive of agents fees (paid by the vendors).
The notaire's fees have to be paid on top at the actual official rate.
Other Features
Property Lot Size: 210 m2
Latest properties
Renovation required
The department of Hérault is in the Languedoc-Roussillon region located in the south of France. It is surrounded by the Pyrénées-Orientales, Ariège, Tarn and Aude departments.
Widely regarded as possibly the most dynamic department in Languedoc Roussillon with Montpellier as its capital and the popular seaside resorts of Sete and Grande Motte bringing in millions of tourists every summer, the Hérault department is certainly busy and growing.
But despite all the activity along the coast, the interior of Hérault is as beautiful and unspoiled as it has always been. The Hérault countryside is glorious, driving away from the coast into the foothills of the Black Mountains you can get lost in an ocean of vines.
Villages in the department of Hérault are incredibly pretty. Roquebrun is stunning, with its bridge and old water mill on the river Orb. St Guilhem-le-Desert is also beautiful - and one of Languedoc’s top tourist spots.
Hérault is also a favourite of Brits looking to move to the area. Pézenas and Lodève are both popular towns - Pézenas used to be the region’s capital and is becoming quite chic.
In short - the department combines beautiful countryside with the buzz and glamour of a major city (Montpellier).
We at Cle France specialise in Property for sale in France through our network of Agents and French Registered High Street Estate Agents. We have sold thousands of houses for sale in France over the years and have helped many find and buy their dream home in France.
We can also help you with everything to do with buying a house in France including getting a mortgage, organising currency exchange, renovation advice, property surveys, planning permission, French translation, opening a bank account and everything to do with French property sales.
All our prices are quoted as FAI (agency fees included) unless otherwise stated and ’notaire’ fees are around 7% (on average) but feel free to ask us for an exact amount on any particular French property for sale you are interested in.
Indeed please feel free to use the ’MAKE AN ENQUIRY’ tab above to ask us any questions you have about buying a property in France. Our UK based enquiry office and staff will guide you through the entire buying process step by step from your first contact right up to taking ownership and beyond, all free of charge.
So when you buy through Clé France you can be confident that you are paying no more than the standard commission rates you would pay anyway, but you have the added benefit of a bi-lingual support team.
For everything you need to know about French property visit www.clefrance.co.uk
A value of 1 in the above graphs: No Rating for this property
General Amenities
Autignac 34480
France
- Living Space M2
- 210
- Land M2
- 20
- Location
- Town
- Location Description
- Tourist Sector
- Internal Feature
- Blank Canvass Project
- Outbuildings
- Yes
- External Feature
- Courtyard
- External Feature
- Mains Drainage
- Style
- Town House
- Condition
- Requires Renovation
Autignac 34480
France
Please complete the form below to request a showing for this property. We will review your request and respond to you as soon as possible. Please add any additional notes or comments that we will need to know about your request.
Autignac 34480
France
If you would like to send this property to a friend that you think may be interested, please complete the form below. To send this property to multiple friends, enter each email separated by a comma in the 'Friends Email' field.
Autignac 34480
France
